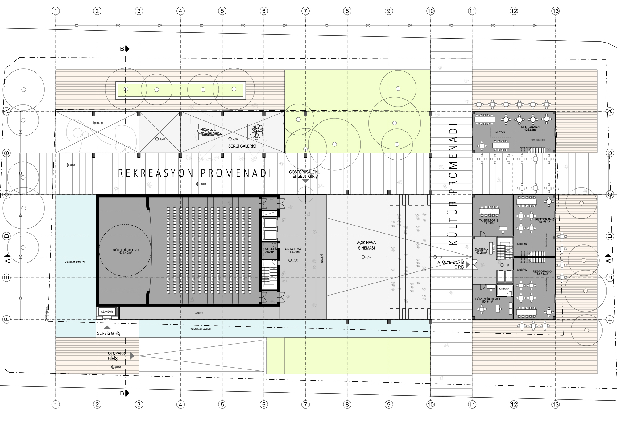
Selçuk Culture and Youth Center The design aims to create a semi open public park and passages around the given program while creating an open air cinema and diverse activity zones for the local youth. The roof is also used as a culture terrace by the users of the art ateliers located at the top.
Date: :November 2016
Type: National Competition
Program: Cultural
Size: 5.604m²
Client: Selçuk Municipality
Location: Istanbul, Turkey
Status: Published
Date: :November 2016
Type: National Competition
Program: Cultural
Size: 5.604m²
Client: Selçuk Municipality
Location: Istanbul, Turkey
Status: Published









