American University of Baghdad, Iraq
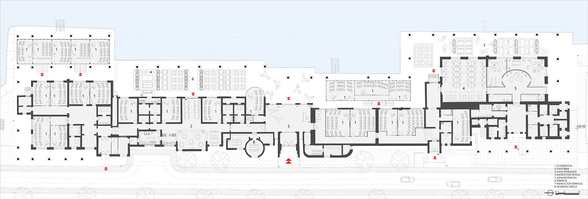
ENG / The project aims to transform one of the latest and biggest palaces of Saddam Hussein, Al-Faw Palace Complex, into a new university campus. The existing palace and surrounding mansions inside the complex are being used as colleges and faculties in terms of adaptive reuse.The Al-faw Palace Complex is located in the west side of the Baghdad, Iraq. The construction of the complex had been started in 1989 and completed in 1991. The complex used as a military base by American forces. The Al-faw Palace also known as Victory Base or Camp Victory.
TR /
Date: April 2019
Type: Commissioned
Program: Educational, University, Masterplan, Renovation, Adaptive, Reuse
Size: 2.500.000m² designed masterplan area / 93000 m² gross construction area
Client: Confidential
Partners: Erhan Vural, Hasan Sıtkı Gümüşsoy
Team: Özgür Demirsöz, Tolga Derviş, Grajina Yıldırım, Şimal Avcı, Danya Sudi, Özge Çağlayan
Location: Baghdad, Iraq
Status: Construction ongoing
Demand: The project aims to transform one of the latest and biggest palaces of Saddam Hussein, Al-Faw Palace Complex, into a new university campus. The existing palace and surrounding mansions inside the complex are being used as colleges and faculties in terms of adaptive reuse.
































